分類:干濕聯合冷卻系統 ——

?干濕聯合閉式冷卻系統
對空氣冷卻和蒸發式冷卻進行優化組合,根據環境溫度和工藝冷卻特性對空冷部分和蒸發冷部分進行合理配比,使兩種冷卻方式在結構上相互依附、功能上相互補充,達到綜合節能降耗效果。
結構形式上分為:上下復合冷卻系統、干濕分離復合冷卻系統
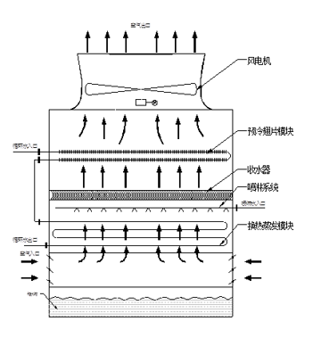
上下復合冷卻系統
工作原理指在原有***閉式冷卻塔基礎上增設空冷翅片管束,熱介質先通過空冷翅片管束進行預冷,通過轉接管進入蒸發管束靠噴淋水蒸發潛熱帶走剩余熱量,軸流風機作用下將熱量排入大氣,完成換熱過程。

上下復合冷卻系統主要優點:
?閉式循環冷卻,保證了循環水水質;
?相對***閉式冷卻塔全年可節水15—80%;
?空冷管束預冷卻減少風機出口白霧產生;
?根據方案配比可實現既定溫度下停水運行;
?安裝方便快捷、運行成本低,維護簡單方便。
干濕分離復合冷卻系統
工作原理:熱介質先通過空冷翅片管束進行冷卻,然后進入蒸發管束靠噴淋水蒸發潛熱帶走剩余熱量,空冷管束和蒸發冷管束分開布置,相互不干涉,各自配置的軸流風機將熱量排入大氣,完成換熱過程,空冷部分在冬季可以單獨運行。
實現環境溫度低于設計停水溫度時系統干運行、高于設計停水溫度時干、濕聯合運行的工作模式,滿足用戶工藝用水溫度要求的同時,節約工業水消耗。
以回水溫度為反饋點,根據熱負荷和環境條件智能調節系統的風機、水泵、閥門等部件,調整系統運行模式,很大程度為用戶節約水耗、電耗,實現系統節能的目的。



翅片管束(鋁管鋁片穿脹)特性參數:
溫度范圍:-60~110℃ 設計壓力:0.6MPa
翅片外形:600mm×133mm×0.3mm 翅片間距:2.5~3.5mm
鋁管φ25×1mm×5000—5500mm 翅化比:60~70
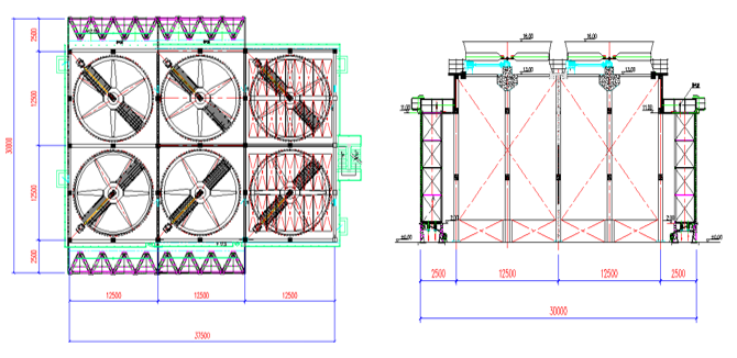
系統應用特點:
空冷塔采用冷卻三角豎直布置,蒸發冷卻段采用蛇形盤管模塊化集中布置,全部采用大風機單元,整機一體化好,系統設計簡單,運行安全可靠。
采用大直徑軸流風機,整體投資小,降低機械故障率,管理維護費用低。
空冷管束豎直布置,提高空間使用率,有效防止冬季結冰故障發生。
相對傳統閉式冷卻塔系統,節水效果顯著,冬季干運行,消除白霧現象。
減少污水排放量,減低企業廢水零排放處理費用。




相關推薦

地址:河南洛陽彭婆工業區
電話:0379-69588809
郵箱:13525902945@163.com
添加微信
關注抖音
友情鏈接:
版權所有 閉式冷卻塔|蒸發式冷凝器|復合節水型閉式冷卻塔|洛陽高華環保冷卻科技有限公司 備案號:豫ICP備18045690號-1
豫公網安備 41032902000249號
0379-69588809